福井県あわら市温泉5丁目1419 売寮
徒歩でも駅へのアクセスが可能な、8分に立地する物件です。
築年数は経っていますが、その分お値打ちの物件です。
令和元年8月に一部リフォームしています。
-
ローンシミュレーションこの物件を購入した場合の、月々の支払い価格の一例です。借り入れを保証するものではございません。
- 返済期間
-
- 金利
-
- ボーナス時の増額(1回分)
-
- 借入金額:
-
- 頭金:
-

- 毎月の返済額:
(※元利均等方式 金利5.00%まで ※返済年数5~50年まで入力できます)
(※ボーナスは年2回で計算しています。1000万円まで入力できます)
(※物件購入時、その他諸費用が発生する場合がございます)
情報の見方担当者のコメント 村岡美和子

- 駅から徒歩8分の距離にある寮です。築年数が経過しておりますので、現状を確認頂ければ幸いです。一部、令和元年8月にリフォームしております。増築未登記部分がございます。
ポイント・特徴
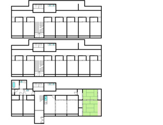
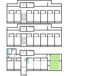
物件概要
【寮】 物件番号:50716670 情報更新日:2026年02月09日 次回更新予定日:2026年02月23日所在地 福井県あわら市温泉5丁目 交通 - えちぜん鉄道三国芦原線「あわら湯のまち」駅 徒歩8分
間取り/詳細 - 建物面積(坪数) 473.30㎡(143.17坪) 価格 1,290万円 管理費 - 駐車場/月額料金 -/- 土地権利 所有権 土地面積(坪数) 579.42㎡(175.27坪) 国土法届出要否 不要 接道状況 一方(東 公道 6.0m) 地目/地勢 宅地/- 棟総戸数/販売戸数 1戸/1戸 都市計画 非線引区域 用途地域 商業 建ぺい率 80% 容積率 400% その他の法令上の制限 - 種別/構造 寮/鉄筋コンクリート 向き - 築年月(築年数) 1973年 5月 (築52年) 所在階/階建 -/3階建 管理組合有無 - 管理形態 - 管理員の勤務形態 - 管理会社 - 取引態様 一般媒介 現況/引渡し 空家/相談 物件番号 50716670 取引条件の有効期限 2026年02月23日 設備条件 - プロパンガス
- 公営水道
- 公共下水
- 電気有
備考 □一部リフォームあり(令和元年8月にリフォーム済)
□増築未登記部分あり
□売主の契約不適合責任免責取扱会社 - LIXIL不動産ショップ ピアライフ
- 滋賀県大津市衣川1丁目18-31
- TEL:0120-73-6490
- 滋賀県知事 (8) 第2080号
建設業免許 滋賀県知事(般-6)012510号
住宅性能保証登録00418-1号 - (公社)滋賀県宅地建物取引業協会
※地図上に表示される物件の位置は付近住所に所在することを表すものであり、実際の物件所在地とは異なる場合がございます。
物件お問い合わせ
- 掲載物件数
-
件
- 公開物件数
-
件
- 会員物件数
-
件
同じエリアの寮

















