大津市衣川1丁目33-37 店舗事務所
■店舗付き事務所
■施設などの利用にいかがですか
■駐車スペース3台あり
-
ローンシミュレーションこの物件を購入した場合の、月々の支払い価格の一例です。借り入れを保証するものではございません。
- 返済期間
-
- 金利
-
- ボーナス時の増額(1回分)
-
- 借入金額:
-
- 頭金:
-

- 毎月の返済額:
(※元利均等方式 金利5.00%まで ※返済年数5~50年まで入力できます)
(※ボーナスは年2回で計算しています。1000万円まで入力できます)
(※物件購入時、その他諸費用が発生する場合がございます)
情報の見方担当者のコメント 村岡美和子

- 薬や日用品を買うのに便利なウエルシア 大津堅田店まで371mです。広々とした駐車スペースをご用意しています。3台まで駐車可。駅徒歩13分の場所にある物件です。築年数の古い物件ですが、そのぶん味わいを感じられます。
ポイント・特徴
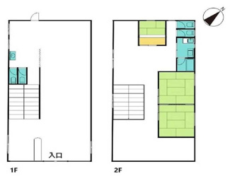
物件概要
【店舗事務所】 物件番号:99645550 情報更新日:2026年01月08日 次回更新予定日:2026年01月22日所在地 滋賀県大津市衣川1丁目 交通 坪数/面積/土地面積 82.80坪 / 273.73㎡ / 304.65㎡ バルコニー面積 - 価格/坪単価 3,280万円 / 39.61万円 管理費 - 修繕積立金 - 駐車場/月額料金 有(3台) / - 土地権利 所有権 国土法届出要否 不要 用途地域 近隣商業 地目/地勢 宅地 / - 種別/構造 店舗事務所 / 鉄骨造 向き - 築年月(築年数) 1983年 4月 (築42年) 所在階/階建 - / 2階建 棟総戸数/販売戸数 1戸 / 1戸 管理組合有無 - 管理形態 - 管理員の勤務形態 - 管理会社 - 取引態様 仲介 現況/引渡し 空家/相談 物件番号 99645550 取引条件の有効期限 2026年01月22日 設備条件 - 公営水道
- 公共下水
- 電気有
- 駐車3台可
- バス・トイレ別
- トイレ2ヶ所
備考 □現況:空家
□駐車場3台可能
~周辺環境~
・よしだクリニックまで徒歩8分
・スーパーゲンサン堅田店まで徒歩13分
・コープかたた店まで徒歩13分
・ウエルシア 大津堅田店まで徒歩5分取扱会社 - LIXIL不動産ショップ ピアライフ
- 滋賀県大津市衣川1丁目18-31
- TEL:0120-73-6490
- 滋賀県知事 (8) 第2080号
建設業免許 滋賀県知事(般-6)012510号
住宅性能保証登録00418-1号 - (公社)滋賀県宅地建物取引業協会
※地図上に表示される物件の位置は付近住所に所在することを表すものであり、実際の物件所在地とは異なる場合がございます。
物件お問い合わせ
- 掲載物件数
-
件
- 公開物件数
-
件
- 会員物件数
-
件
この物件を見た方お勧め物件
- 大津市雄琴1丁目2-21 店舗
- 580万円 -/62.22㎡
- 滋賀県大津市雄琴1丁目
- 湖西線「おごと温泉」駅 徒歩18分
- 大津市松山町6-25、26 店舗付事務所
- 1億5,500万円 -/249.23㎡
- 滋賀県大津市松山町
- 湖西線「大津京」駅 徒歩10分




































