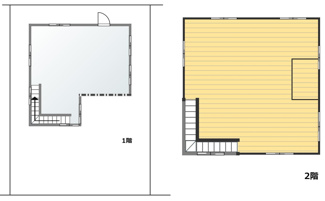
本堅田3 倉庫 Ⅱ 1-2階
駐車場5~6台駐車可!2階ホイストクレーン付き。2階天井高最大5m。
- 賃料
- 19万8,000円
- 坪単価
- 3810.62円
- 坪数/面積
- 51.96坪 /
171.78㎡
- 所在階
- 1-2階
- 管理費・共益費
- -
- 敷金
- 39.6万円
- 礼金
- 19.8万円
-
初期費用シミュレーションこの物件を借りた場合の初期費用の一例です。
- 賃料
- 管理費・共益費
- 敷金:
- 礼金
- 前家賃(日割り) ※1
-
- 前家賃(日割り)
- 仲介手数料 ※2
- その他費用
- 合計
※1. 1か月を30日として計算しています。
※2. 仲介手数料は仮の価格となりますので、実際の価格に関してはお気軽にお問い合わせ下さい。
情報の見方担当者のコメント 内田耕平

- 車をお持ちの方にはうれしい現在空き有りの駐車場付き。防犯性も高く、通気性もある電動シャッター付。賃料は19.8万円です。こちらの物件は礼金が1ヶ月のみです。
ポイント・特徴
物件概要
【倉庫】 物件番号:38720693 情報更新日:2025年11月10日 次回更新予定日:2025年11月22日所在地 滋賀県大津市本堅田3丁目4-18 交通 賃料/坪単価 19.8万円/3810.62円 坪数(面積) 51.96坪(171.78㎡) 管理費・共益費 - 敷金/礼金/保証金 39.6万円/19.8万円/0ヶ月 償却/敷引 -/- 更新料 0ヶ月 駐車場/月額料金 有/0円 権利金/雑費 -/- 保険加入/料金 有/- 保険名/保険期間 別途/2年 保証人代行義務 - 保証会社 - 保証会社詳細 - 向き - 築年月(築年数) 1996年 3月 (築29年) 契約期間 2年 種別/構造 倉庫/鉄骨造 部屋/所在階/階建 -/1-2階/2階建 現況 空家 引渡時期 2026年04月上旬 取引態様 専任媒介 物件番号 38720693 取引条件の有効期限 2025年11月22日 設備条件 - 公営水道
- 電気有
備考 1階床 土間打ち
2階床 フローリング取扱会社 - LIXIL不動産ショップ ピアライフ
- 滋賀県大津市衣川1丁目18-31
- TEL:0120-73-6490
- 滋賀県知事 (8) 第2080号
建設業免許 滋賀県知事(般-6)012510号
住宅性能保証登録00418-1号 - (公社)滋賀県宅地建物取引業協会
※地図上に表示される物件の位置は付近住所に所在することを表すものであり、実際の物件所在地とは異なる場合がございます。
物件お問い合わせ
- 掲載物件数
-
件
- 公開物件数
-
件
- 会員物件数
-
件
この物件を見た方へのお勧め物件
- 仰木③ 倉庫
- 2.2万円 -/23.10㎡
- 滋賀県大津市仰木3丁目
- 湖西線「おごと温泉」駅 徒歩29分
- せいふうレンタル収納庫
- 5,500円 -/1.87㎡
- 滋賀県大津市清風町
- 湖西線「小野」駅 徒歩28分
- 大津市唐崎1丁目の倉庫
- 107.8万円 -/598.84㎡
- 滋賀県大津市唐崎1丁目
- 湖西線「唐崎」駅 徒歩8分


































